珀斯BBS-珀斯论坛_珀斯租房_珀斯中文网_珀斯华人社区_信息平台_信息帮转_Perthbbs.com中文网
标题: 【尊铂地产集团】墨尔本第二CBD-BoxHill奢华庭院-联排别墅即将落成,所剩不多!欲... [打印本页]
作者: 尊铂地产集团 时间: 2018-10-12 18:26
标题: 【尊铂地产集团】墨尔本第二CBD-BoxHill奢华庭院-联排别墅即将落成,所剩不多!欲...
尊铂地产投资集团

联排别墅为何熟人青睐?

以不同物业类型在选址上的特点而言,公寓通常会建在最靠近公共设施的地址,它的优势是方便,出门便是商场或者火车线,但缺点是有时候会过于吵闹,缺少私密性。而独栋别墅则正相反,它们通常有较好的私密性,有些深宅大院一般人更是要找到都不容易。但要付出代价便是,独栋别墅的出行往往必须要靠自驾车代步。
联排别墅可以说正好结合了两者的优点,通常距离公共设施的距离都不太远,但也不会紧挨着大马路的边上建造。
同样,今天小编依然要给大家介绍两个优选的联排别墅供大家参考喽!

N0.1


1 项目信息
具体地址:15 Taldra St,
项目类型:联排别墅
所在城市:墨尔本
所在区域:Box Hill North
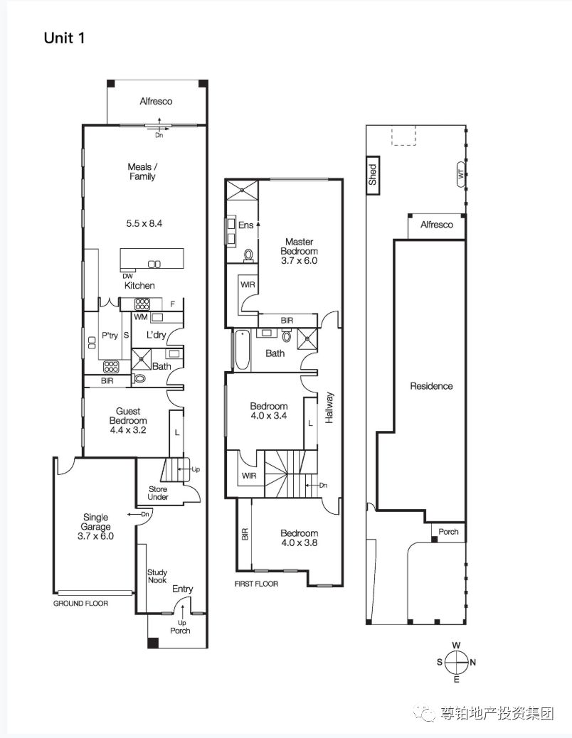
基本户型:4房3卫1+1车库
项目价格:1,498,000起

2 必购原因
1~紧靠墨尔本第二个CBD Box Hill,2~让您既可以享受 Box Hill 的繁华和热闹,又可以闹中取静,享受美好生活
分分钟可到 Box Hill Central, Doncaster Westfield 和东部高速公路 M3
3~周围教育资源丰富
4~步行可到 Springfield Park 和 Bushy Creek Reserve,这里是您户外活动的好场地!
5~一楼层高3米,二楼层高2.7米. 全部采用欧洲高档品牌厨房电器

3 区域简介
项目位于距墨尔本市中心约20公里的Box Hill North,在过去的12个月中,墨尔本东部的Box Hill成为了全澳洲房价上涨最快的区域。

据Domain Group 提供的数据显示,Box Hill的房价增幅达到了惊人的42.4%,中位价升至了127万,成为了新加入百万房产俱乐部的26名成员之一。

该区域起伏的街道有众多建设于20世纪50年代的别墅,全都是设计精美的优质住宅, 坐高望远的花园中也坐落着众多宽敞、带些许复古风格的别墅。

该项目所在区域是墨尔本最具投资潜力的十大区域之一,在过去的10年中,中位价上涨117%, 平均每年房价增长率为9.63%!
交通出行
分分钟即可到达火车站与电车站,
步行300米左右便有公交线路270,可直达Box Hill

通过公交车接驳,可到墨尔本中心搭乘电车或火车去CBD,火车大概时长为20分钟
距离M3高速公路入口2km内,快速方便到达墨尔本CBD和墨尔本东南区各个小镇

教育资源
更为让人值得关注的是这个项目所在的学区的两所墨尔本公立中学

排名分别在第5以及第25!

在过去的12个月里,对这个区域的关注度与需求度一直非常高!相对于高需求量,这个区域的供给量确实越来越少,在二手房市场里,这个区域的清盘率高达85%!

4 室内设计
全新的双层联排别墅位于Box Hill North闹中取静的街道,

设计将空间和采光利用最大化,提供精致、易打理的生活方式。

户型很好,现代化设计,豪华装修,铺抛光实木地板,装挑高天花板。

卧室铺地毯。有实用的客厅,餐厅。现代化的厨房配备欧式不锈钢厨具,

玻璃防溅挡板和石制备餐台,通向宽敞的露台和易打理的花园。
户型图欣赏:



5 房屋信息
4房3卫1+1车位:$1,498,000起
居住面积:26.6 SQ
占地:约 300 平
-
屏幕快照 2018-10-12 下午6.21.59.png
(528.06 KB, 下载次数: 276)
| 欢迎光临 珀斯BBS-珀斯论坛_珀斯租房_珀斯中文网_珀斯华人社区_信息平台_信息帮转_Perthbbs.com中文网 (http://ded2079.smartservers.com.au/) |
Powered by Discuz! X3.2 |